私たちは誰ですか。
私たちは図面屋です!
中国・大連・図面屋です。
弊社は中国・大連に在る日本建築図面製作の専門会社です。
CAD(AutoCAD・Jw_cad)により作図を行っております。
図面屋の工夫は誠実である。
効率的で専門的な品質「顧客至上、品質第一、納期厳守」という理念を掲げ、業界の品質を先導企業を目指し、顧客に優れた図面やサービスを提供いたします。
主な業務:建築施工図・仮設計画図・実施設計図・CADトレース(図面トレース)・BIM作図
当社では建築施工図・仮設計画図・実施設計図(意匠・設備・構造)・CADトレース・BIM(Revit)等の作図を行っております。
小規模な建物から大型商業ビルまで、
経験が豊富なスタッフが作図対応致します。
まずはお気軽にお問い合わせください。
図面屋とは
図面屋といわれるのは、基本的に図面を起こす人。
図面屋 =建築的な設計をしないで図面のみ作成する人。
たとえば… ・建築家が設計し、図面屋が図面を作成する手伝いをする。
・建築設計屋が設計し、デザイナーが外観を整える。
・デザイナーがイメージスケッチを描き、建築設計屋が設計をする。
…などなど、色々な組み合わせがあります。
「図面屋」が図面に表すという流れです。
図面屋自体には免許などはいらないので、CADが出来、
ある程度の建築知識と頭の中で平面図から立体的に理解する能力があれば、
「意匠の設計士」どおりの図面を書くことはできると思います。
しかし、「意匠の設計士」は建築施工(現場)の知識が少ない人が多く、
施工不可能な設計もよく行うので、 ただ何も考えずに、
いわれた通りに図面を書くだけではなく、
施工が可能な整合性の取れた図面を書くためには、 施工の知識が必要です。
特に、現場で使う施工図を作る「図面屋さん」で一流の人は、
施工の手順ややりかたなどの細かいことまで 理解している人です。
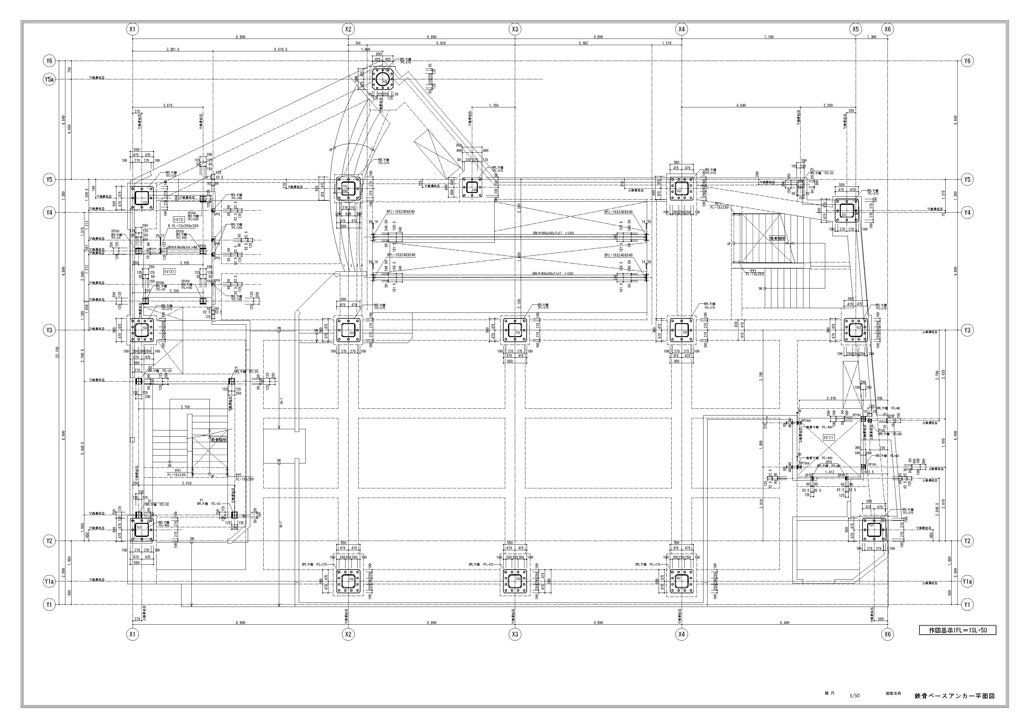
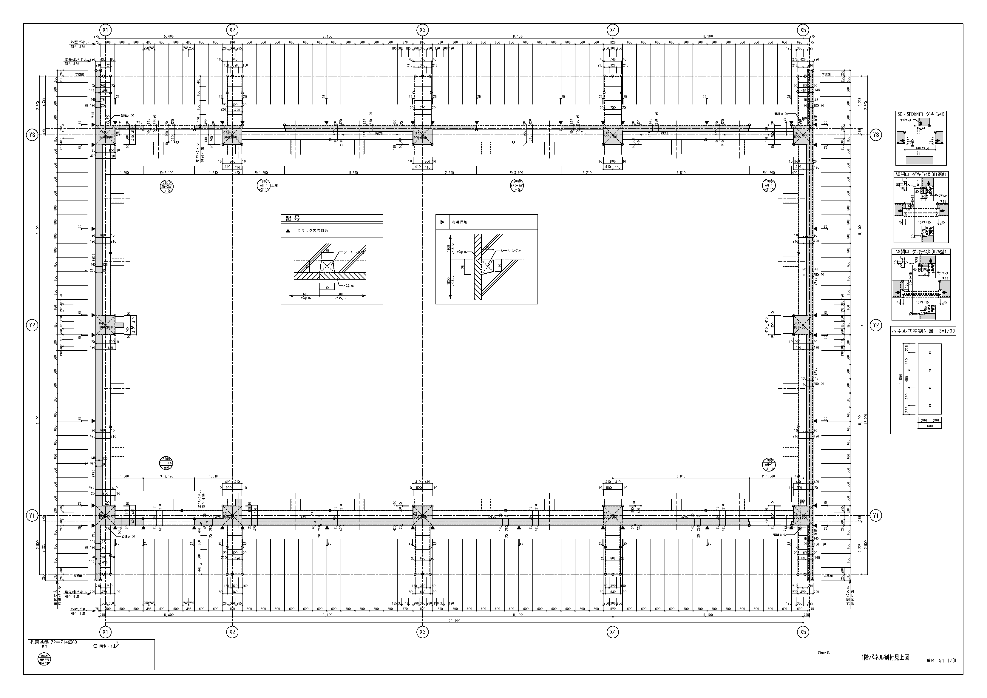
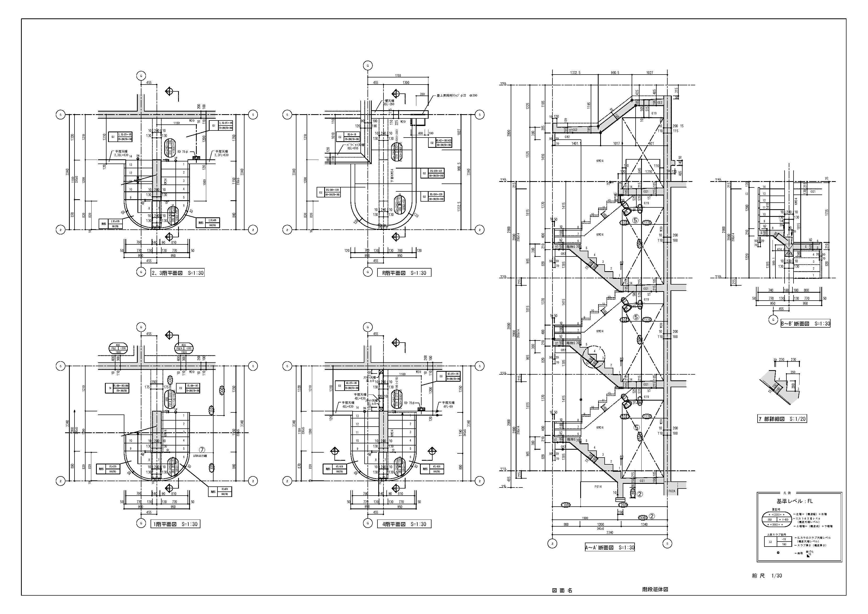
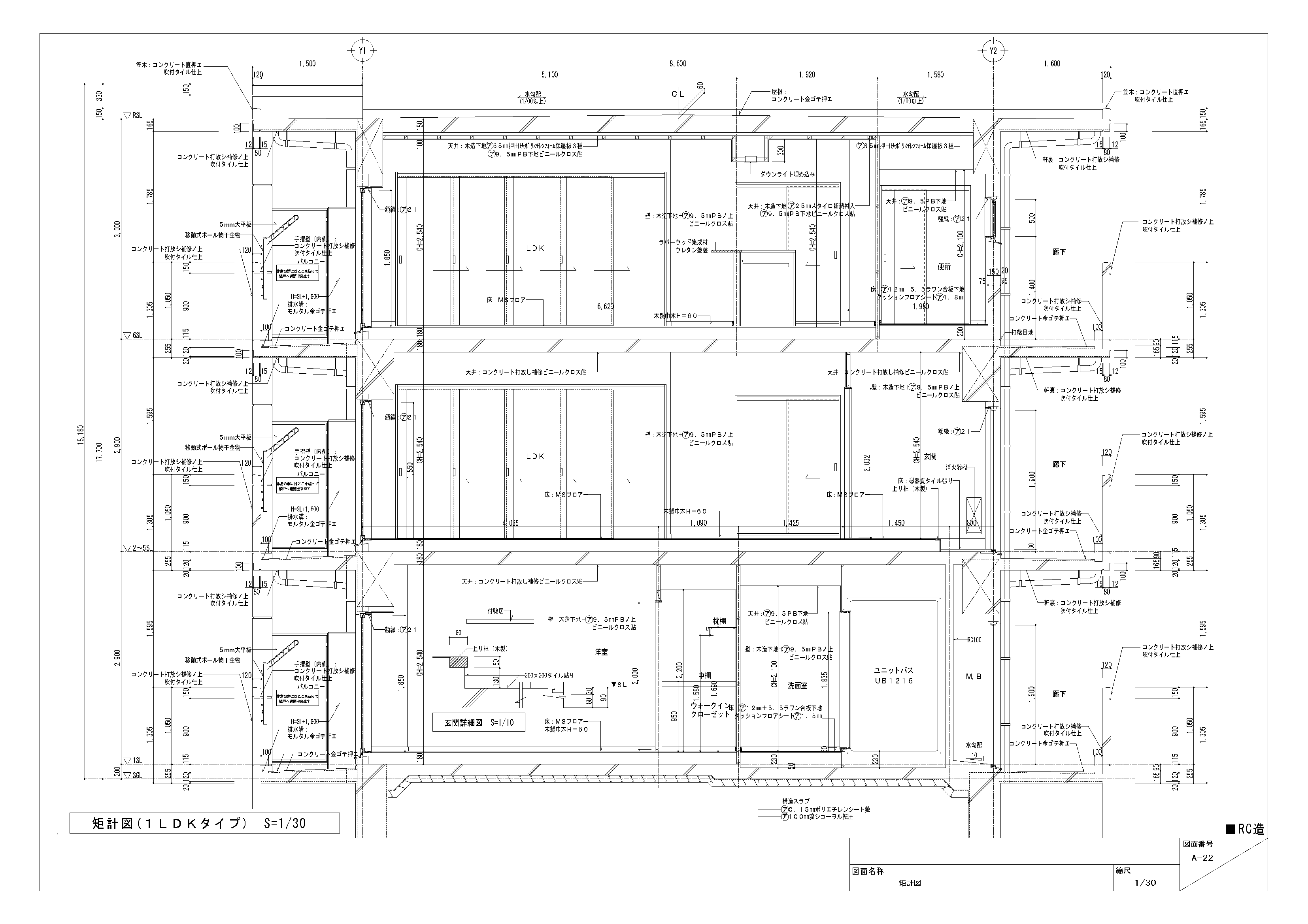
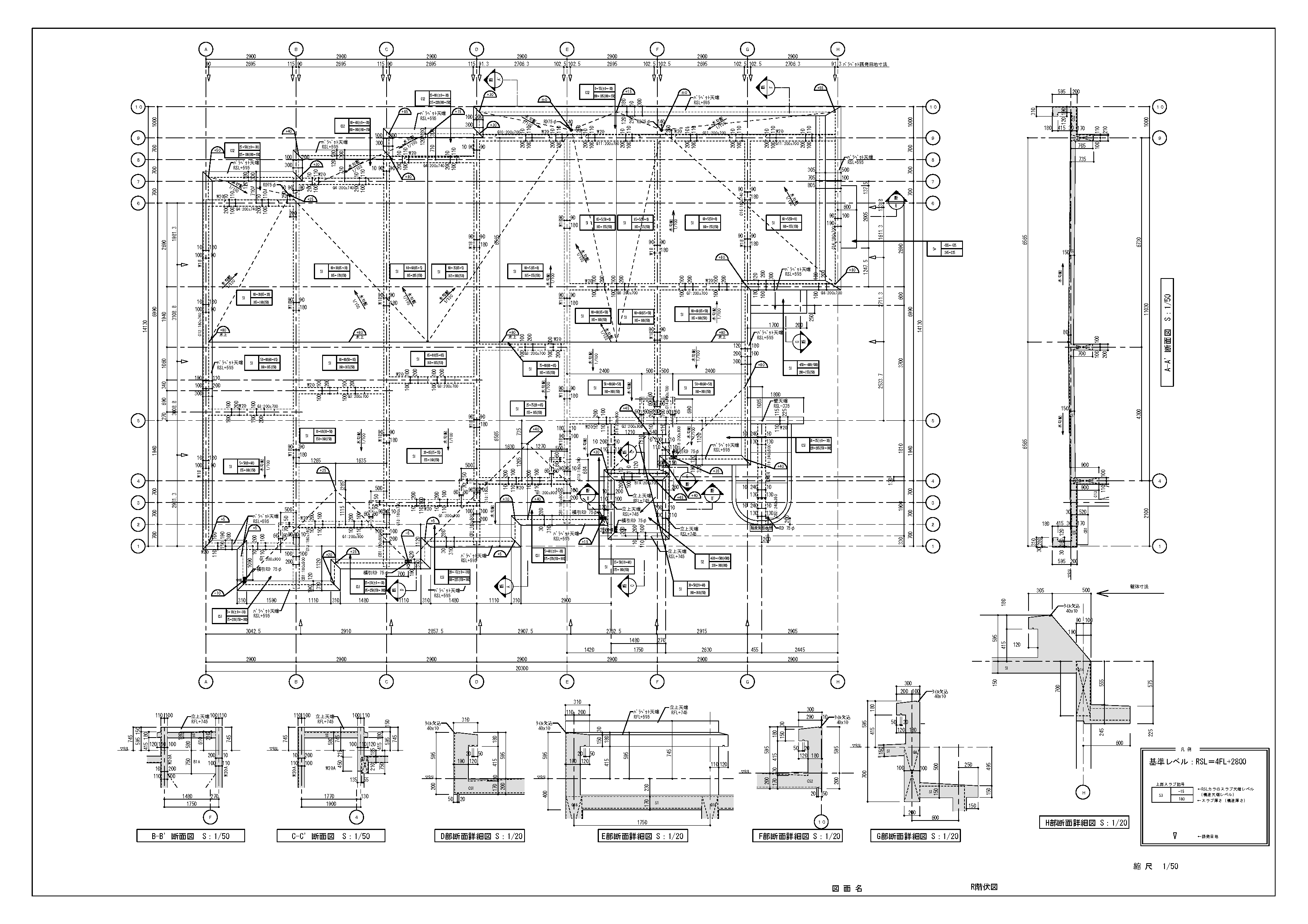
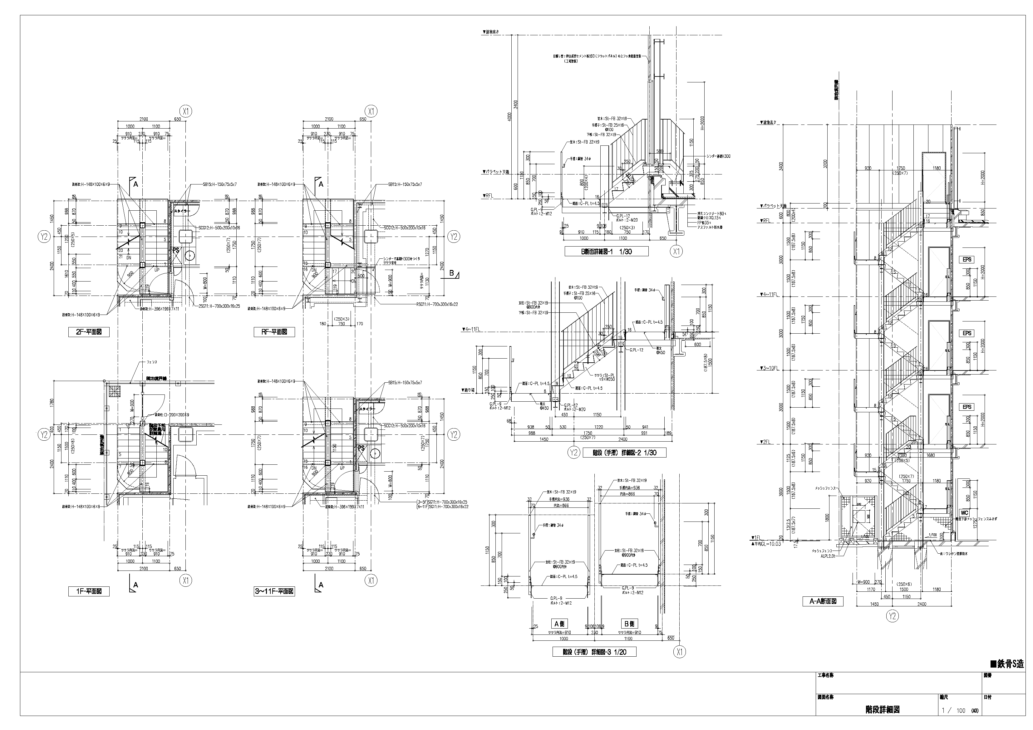
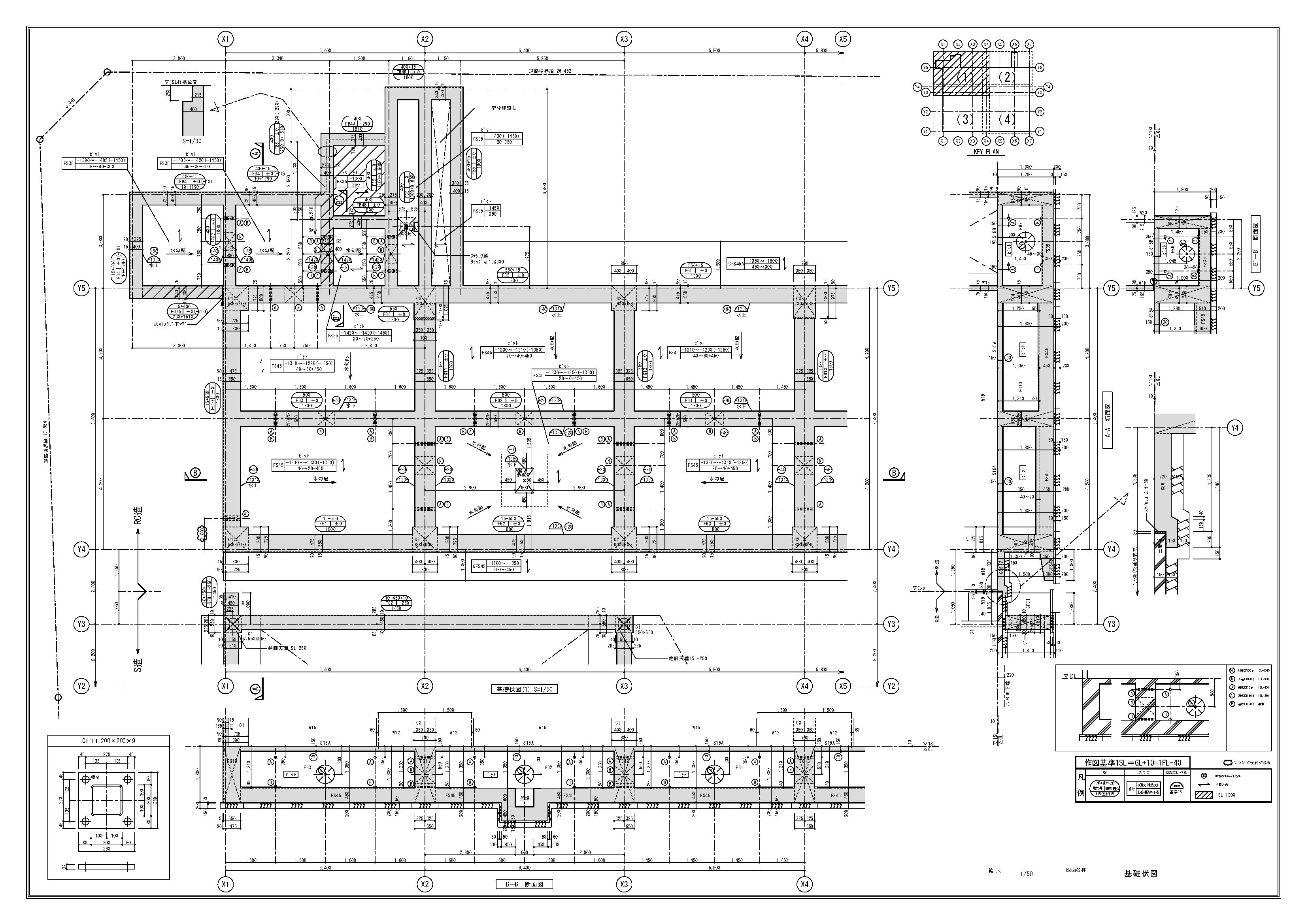
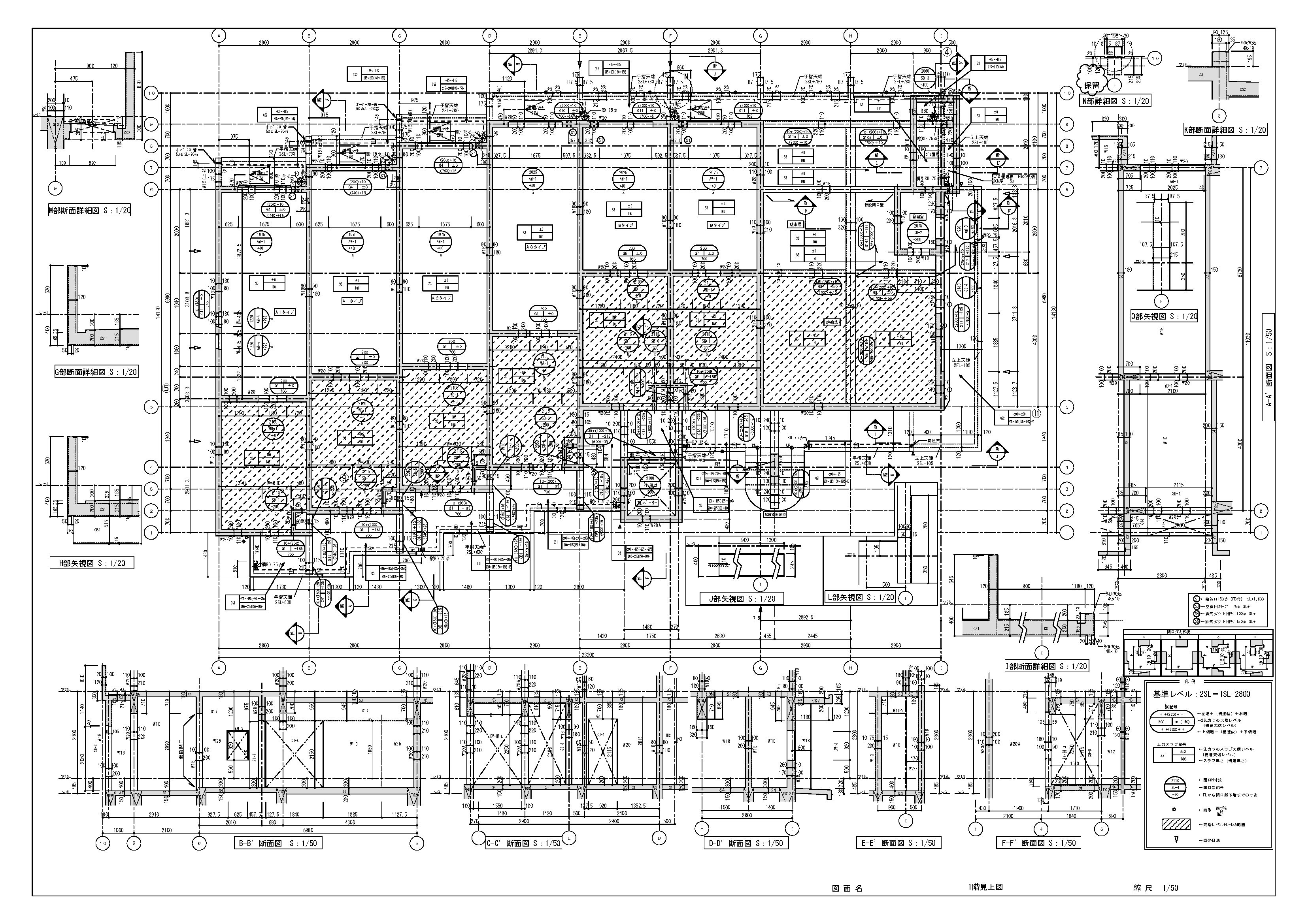
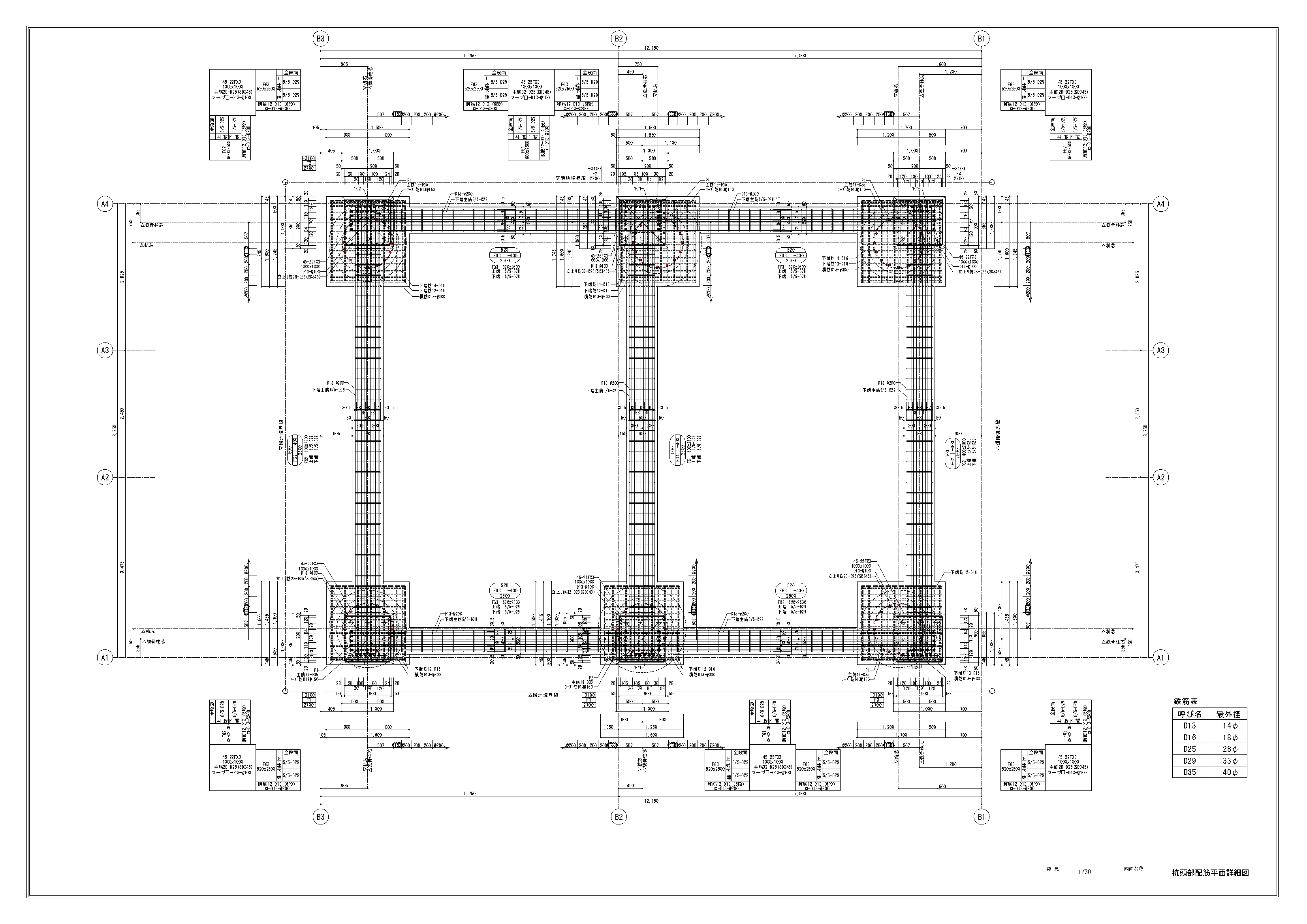
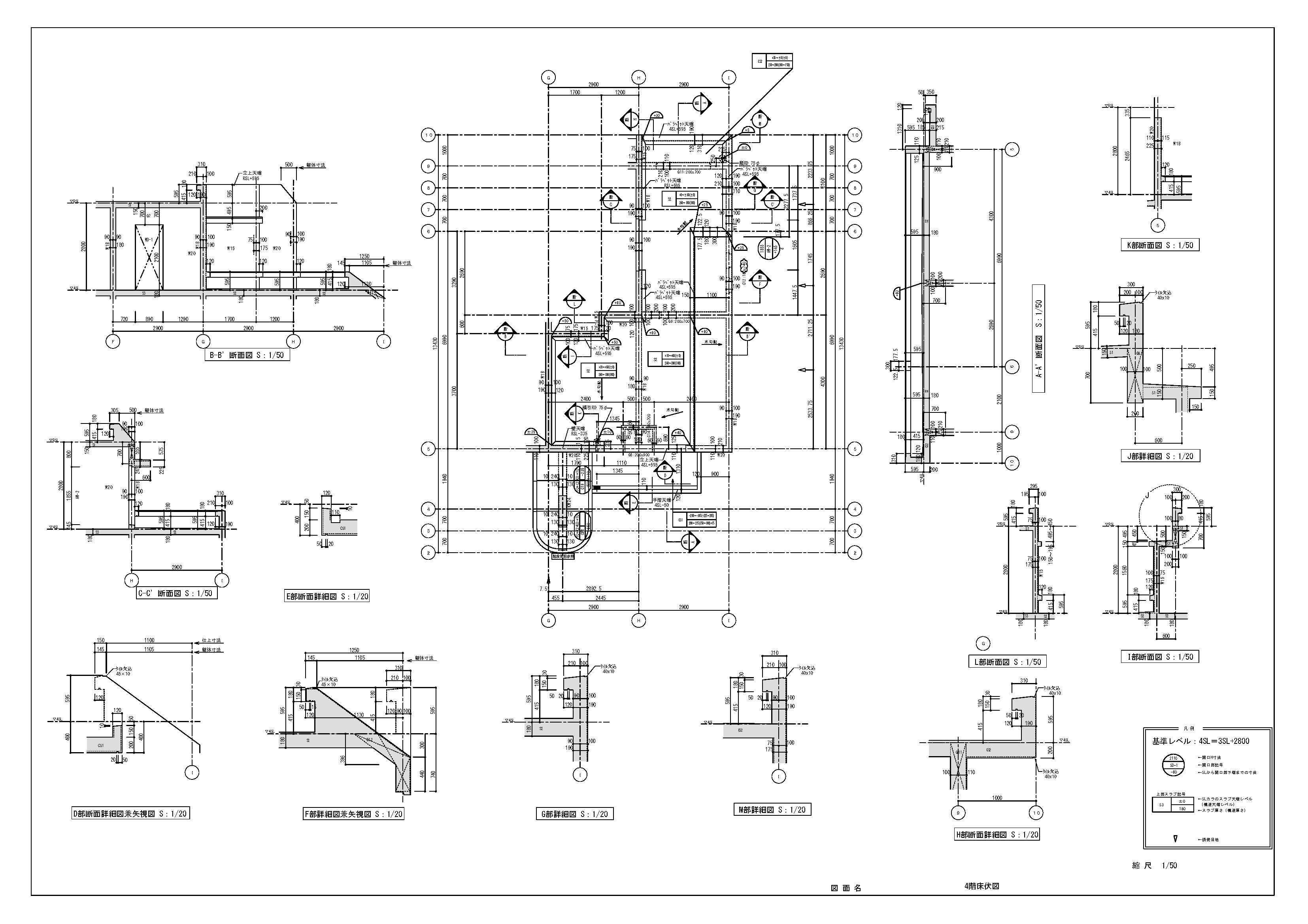
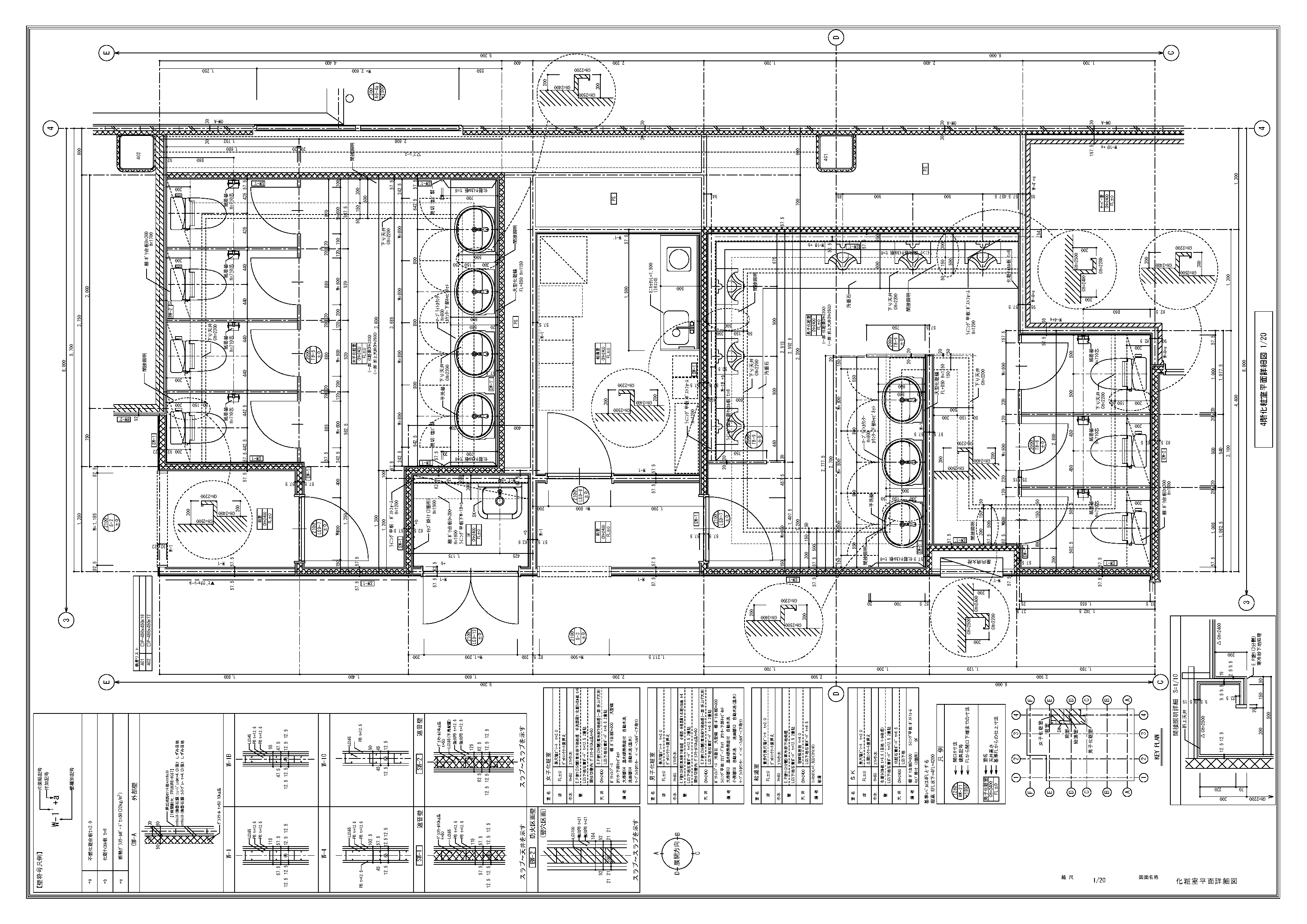
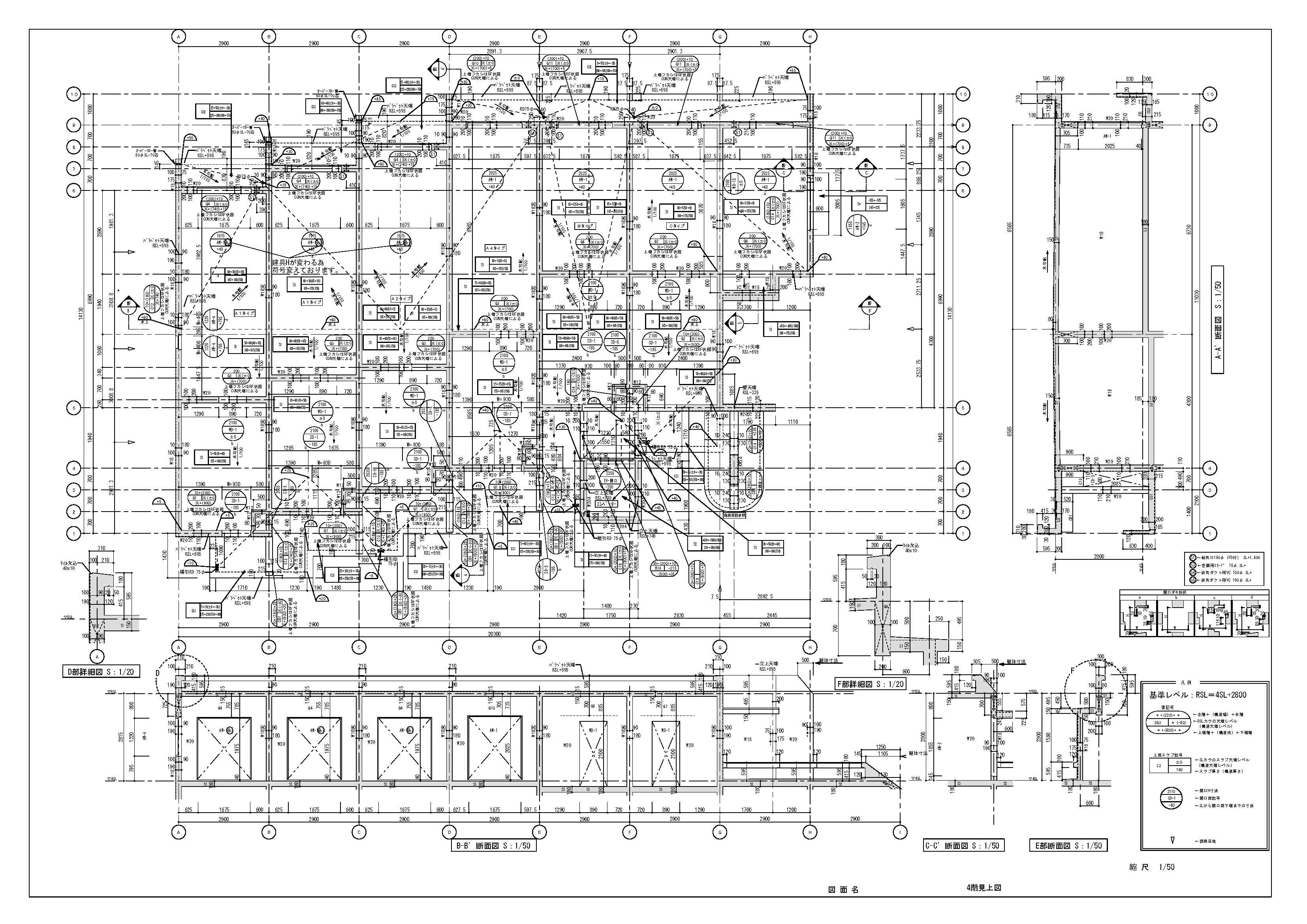
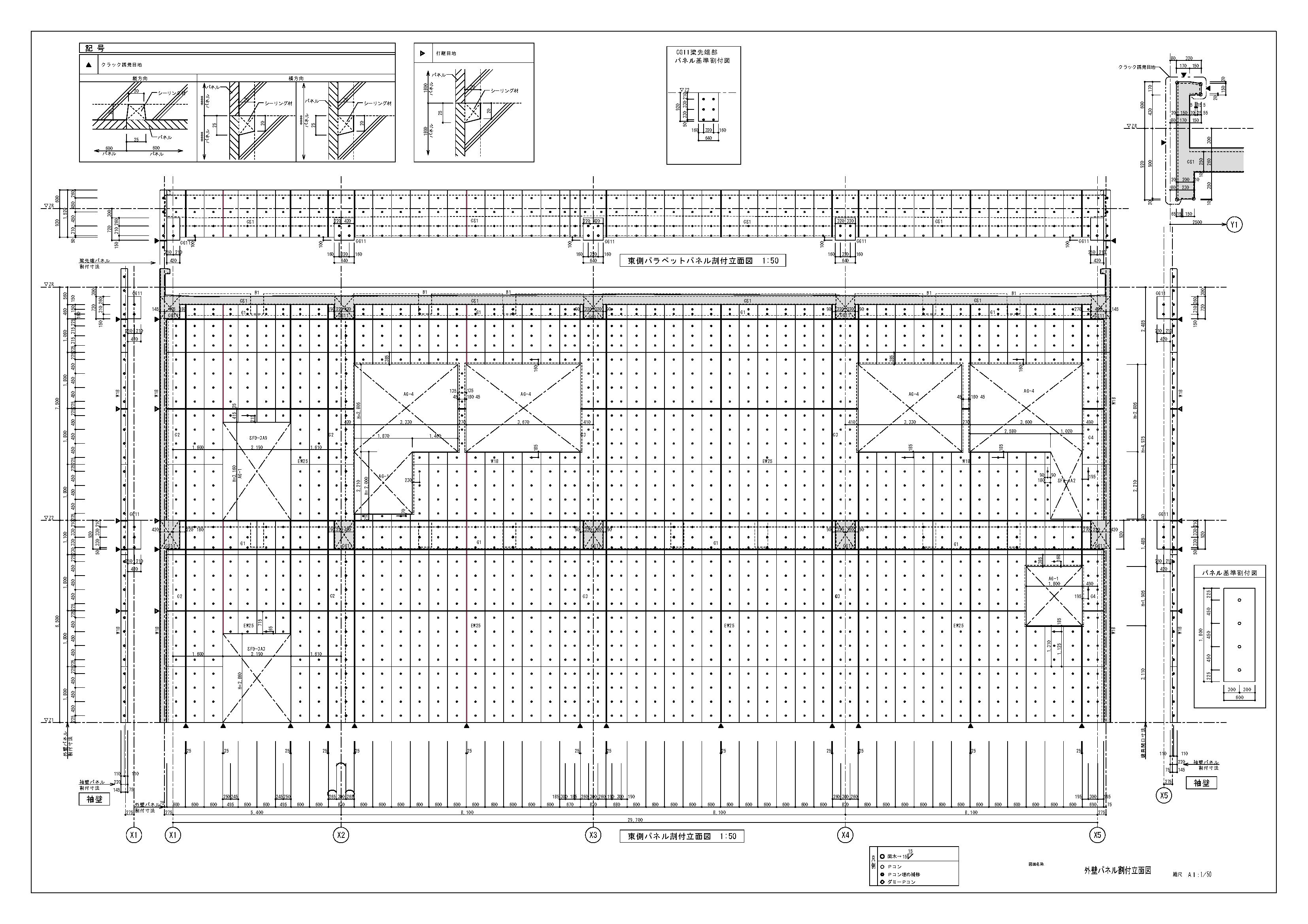
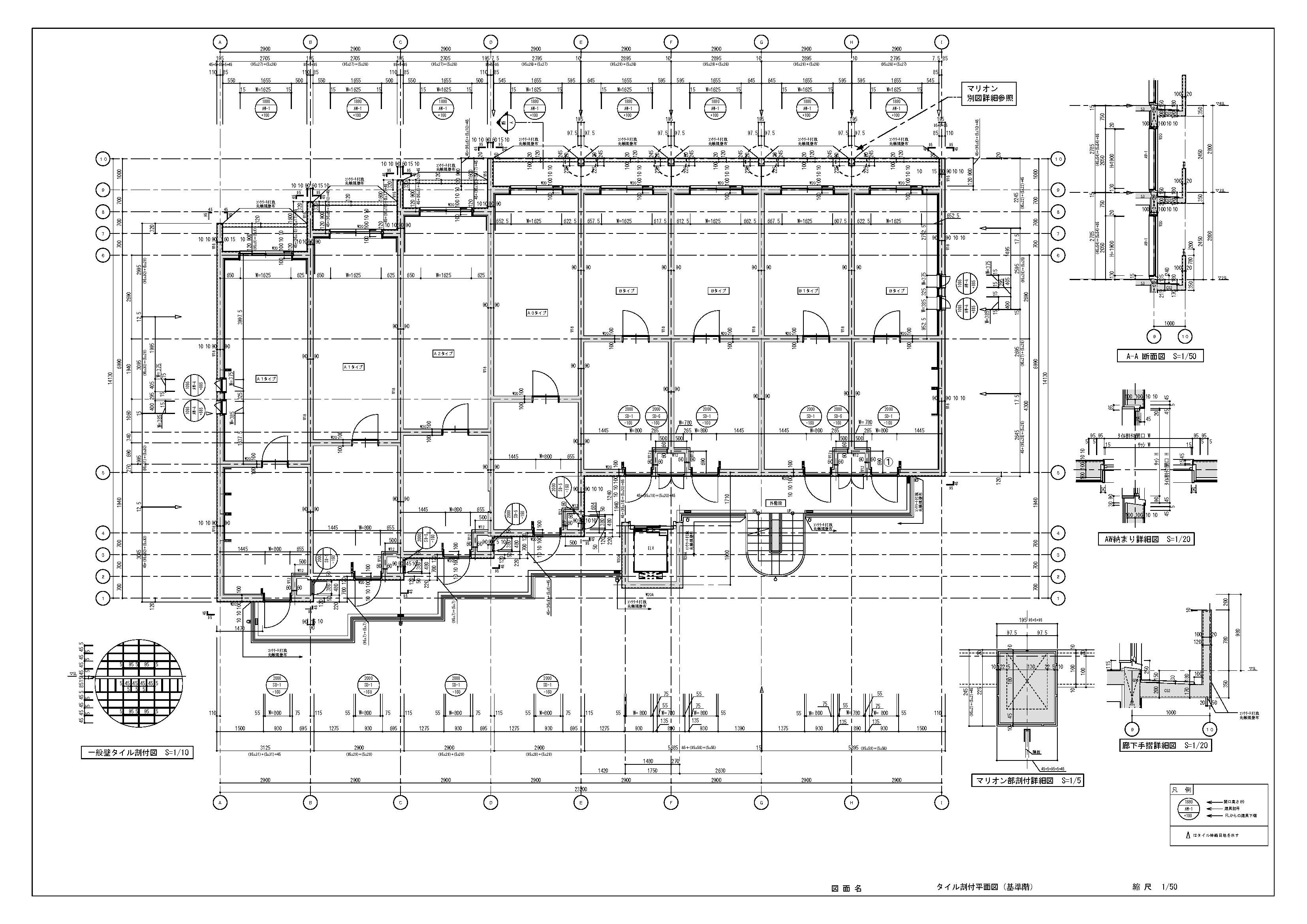
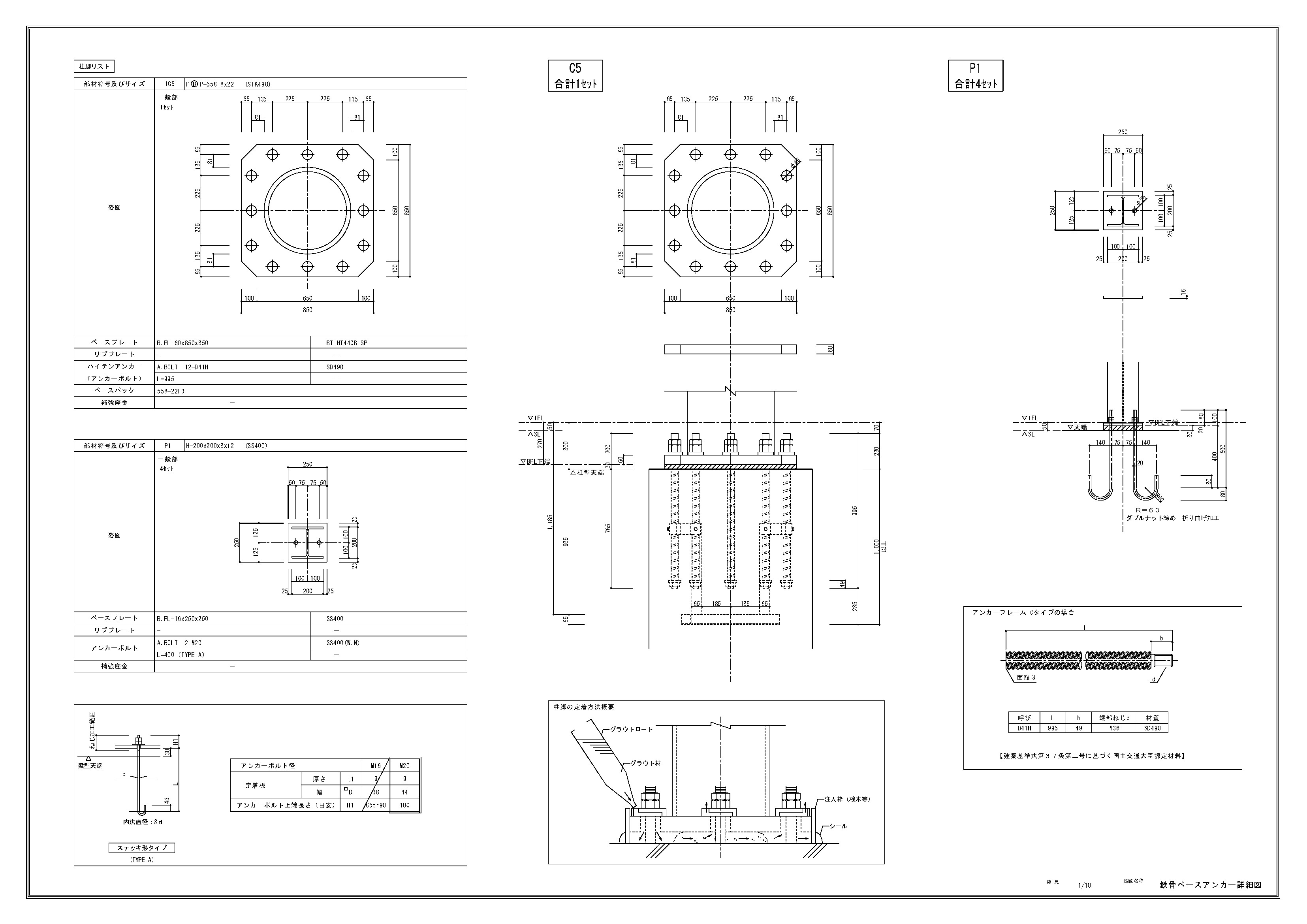
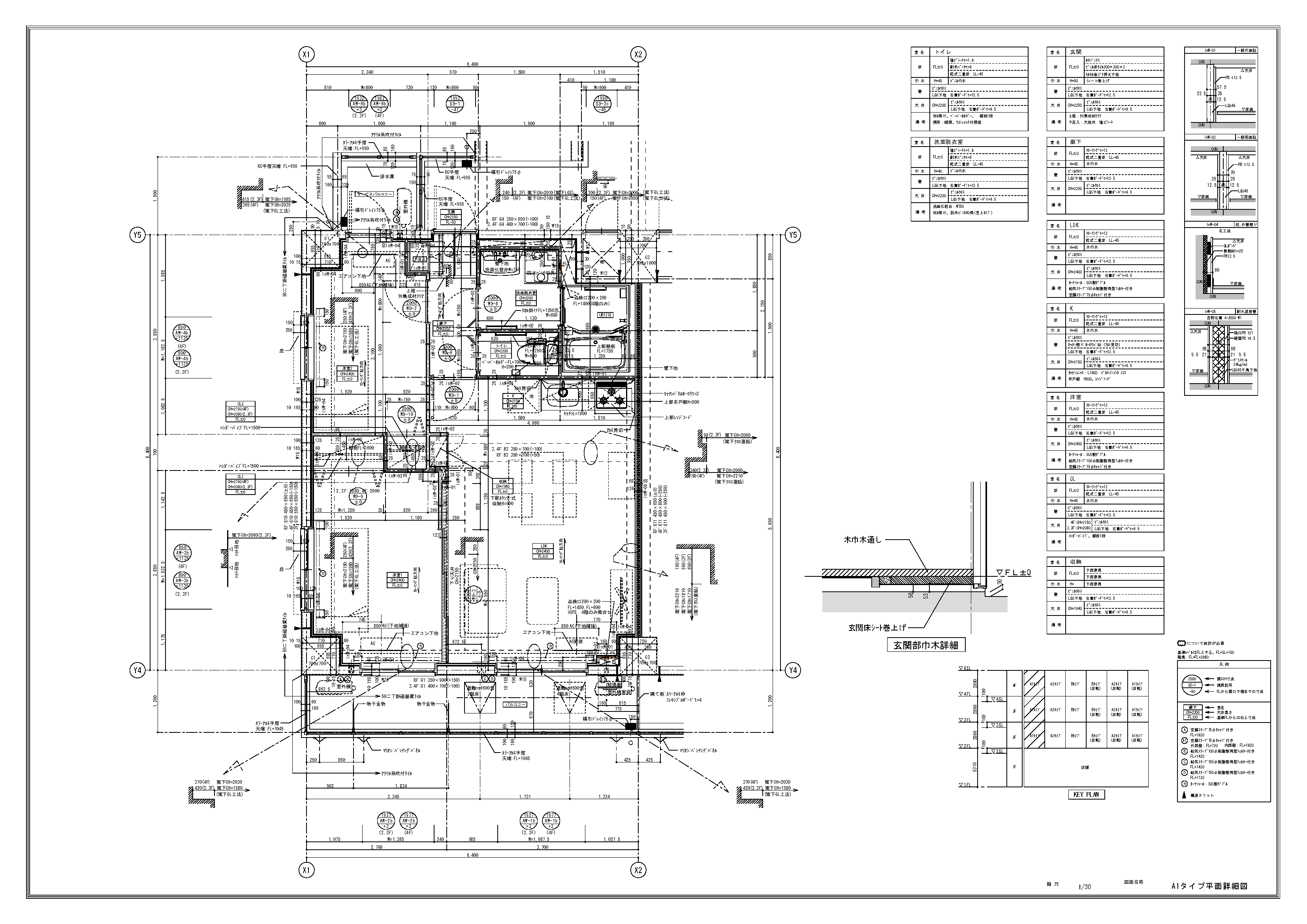
施工図サンプル
(A1図枠)
サービス範囲
・BIM作図
私たちの物語
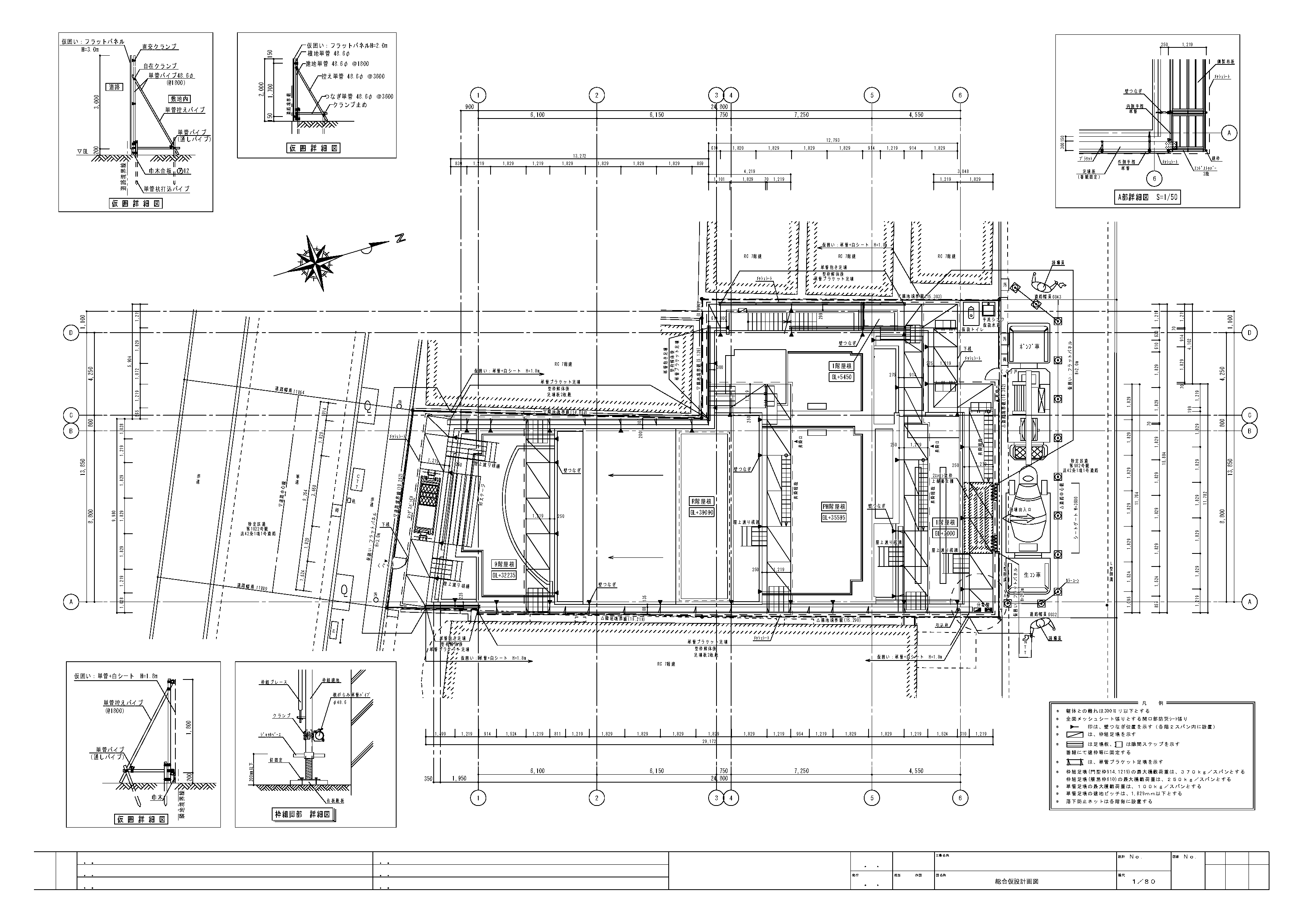
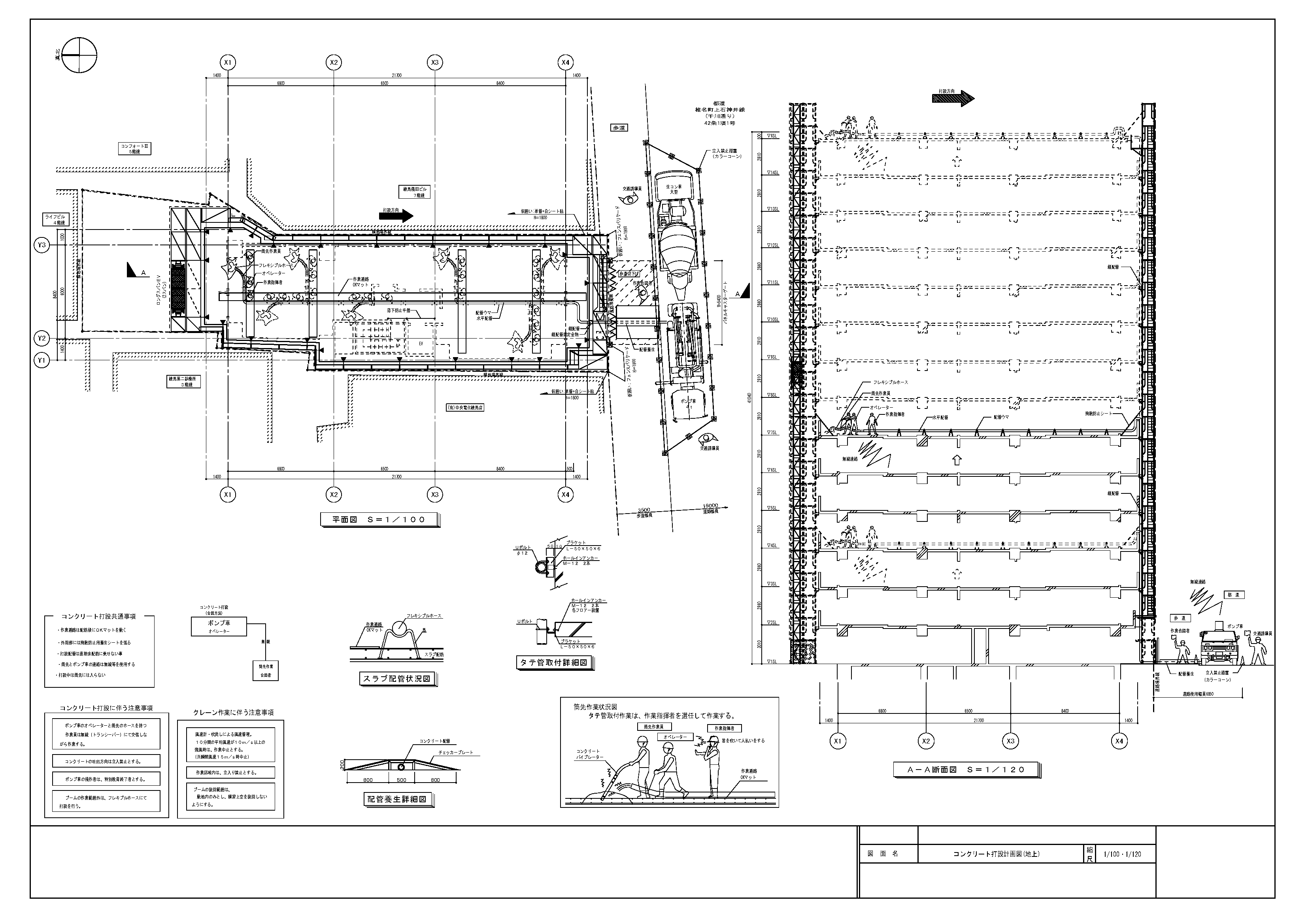
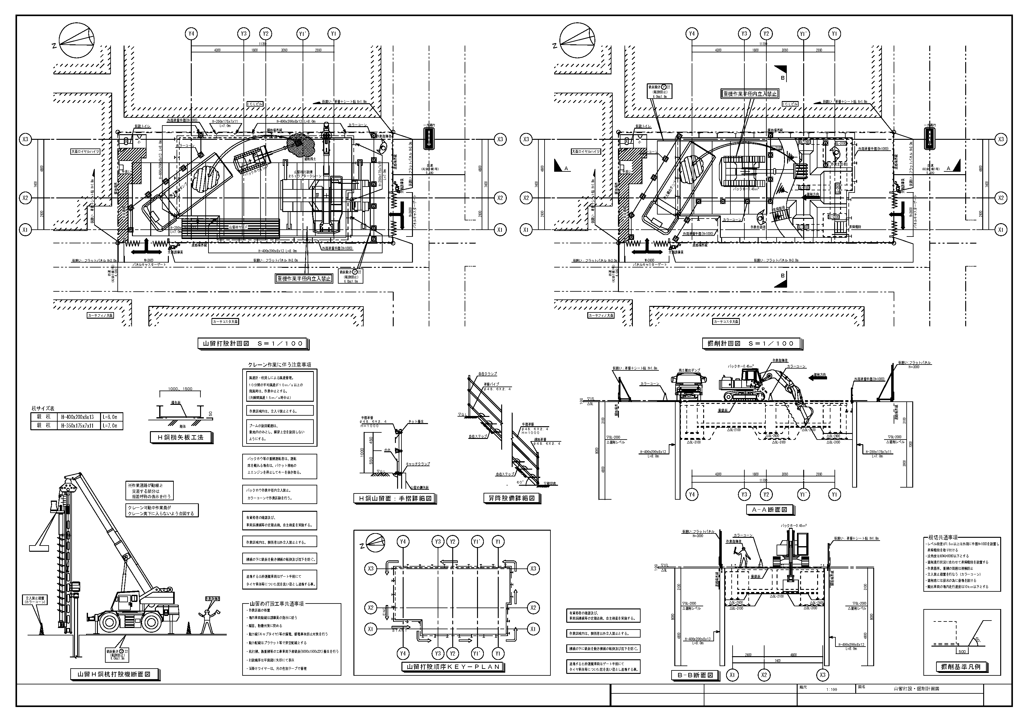
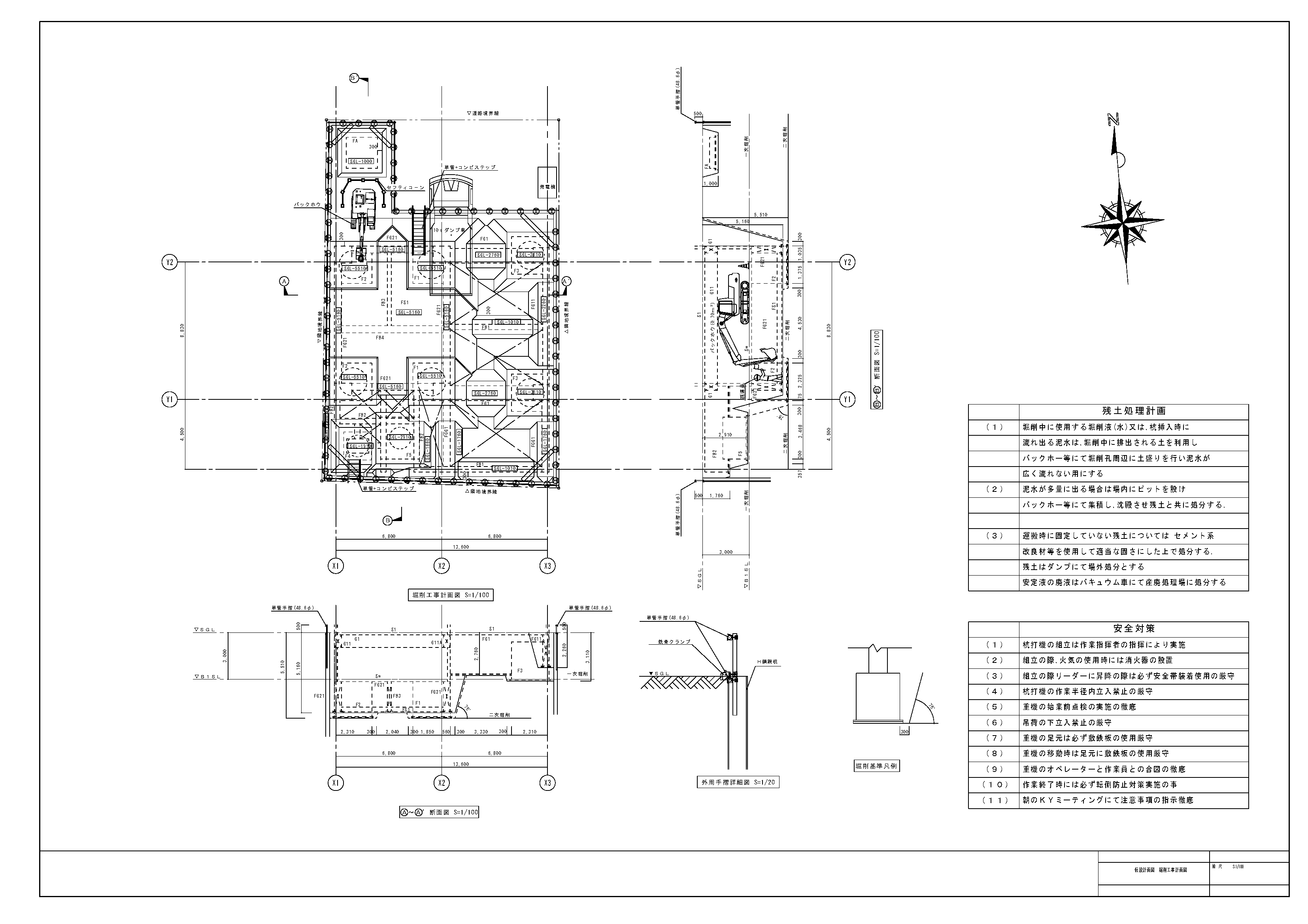
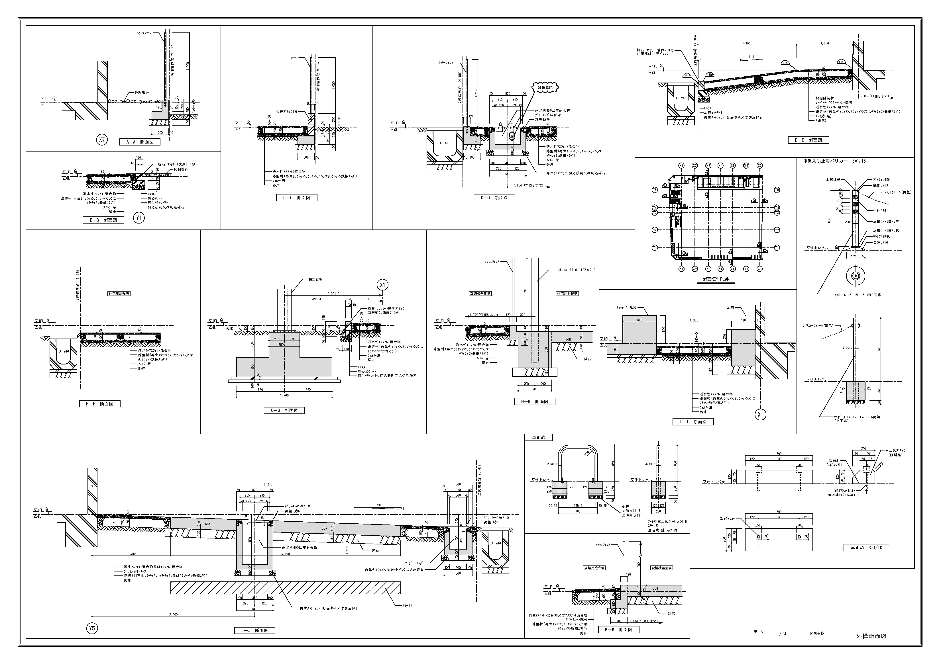
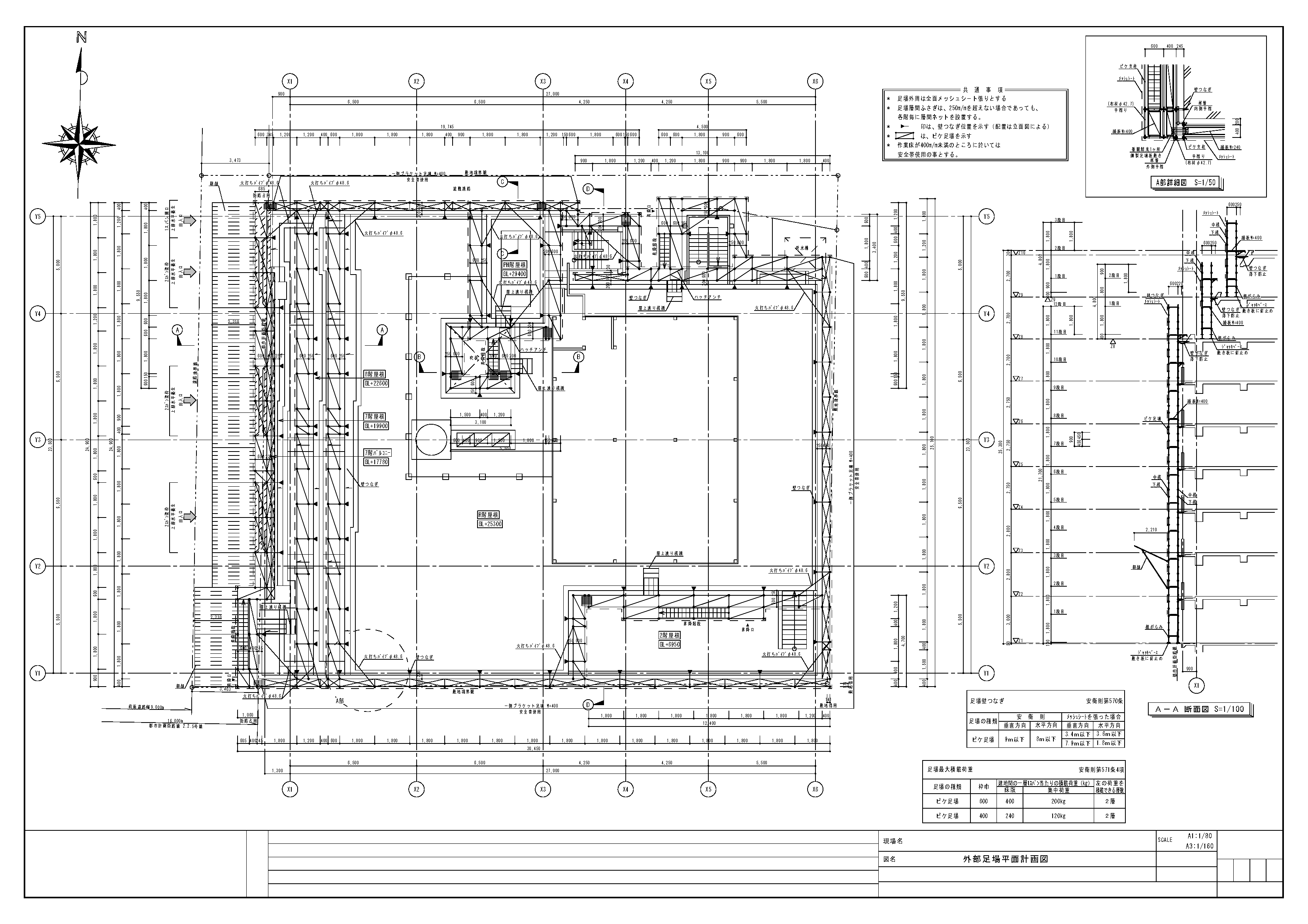
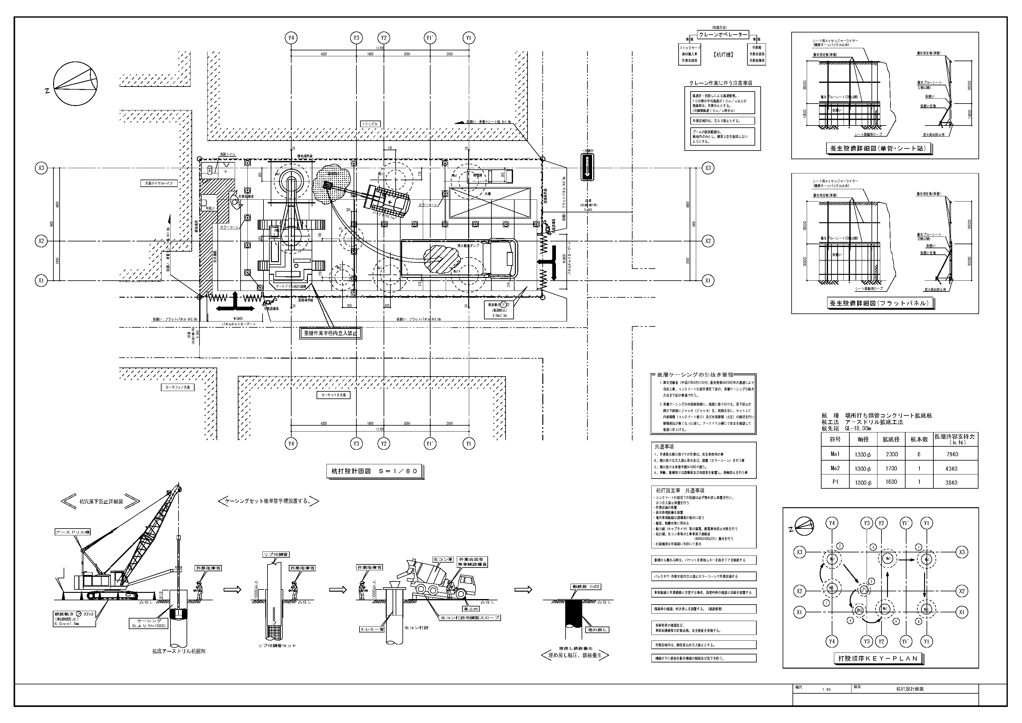
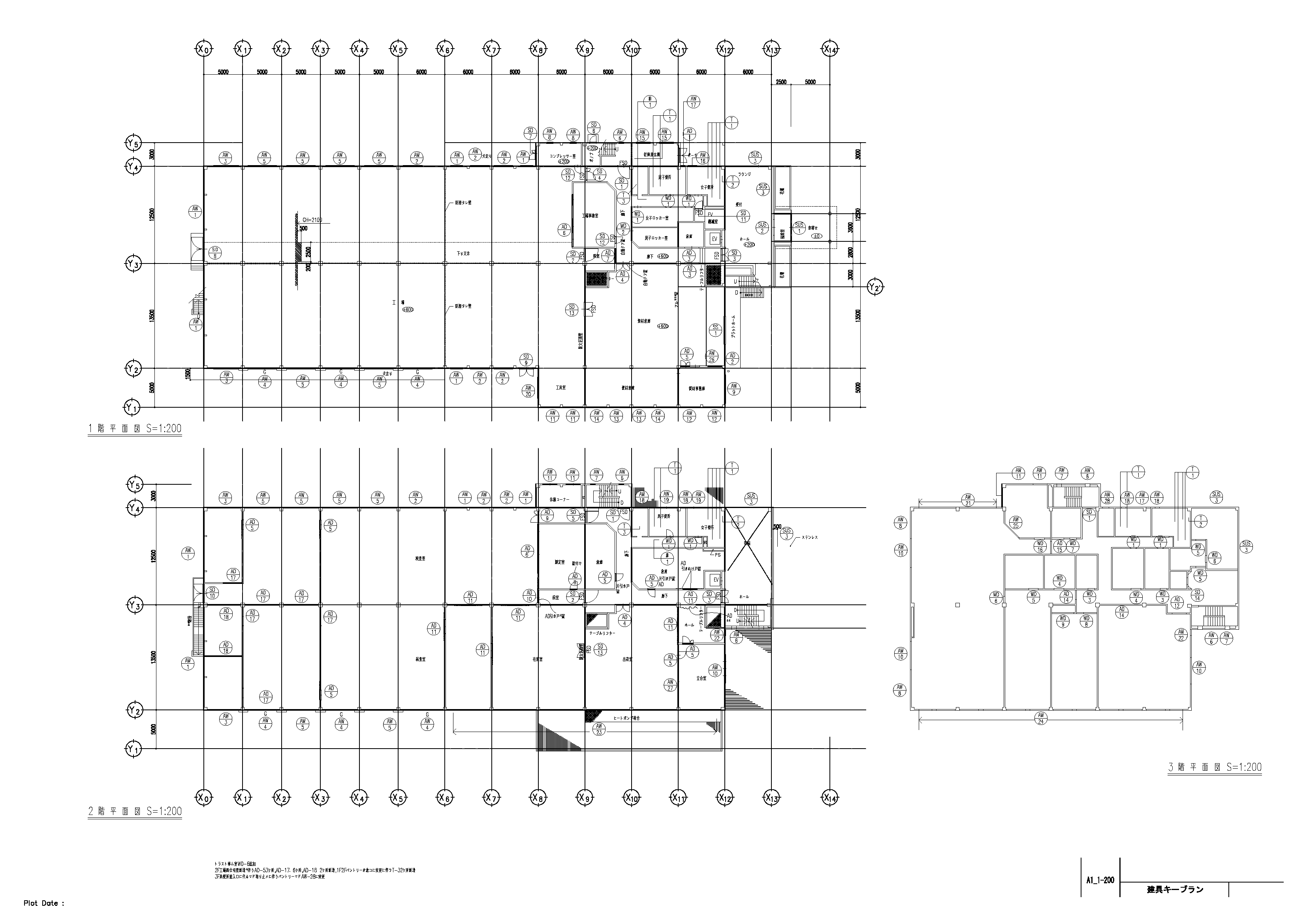
仮設計画図サンプル
(A1図枠)
足場計算書
BIM対応可能図面
BIM案件事例
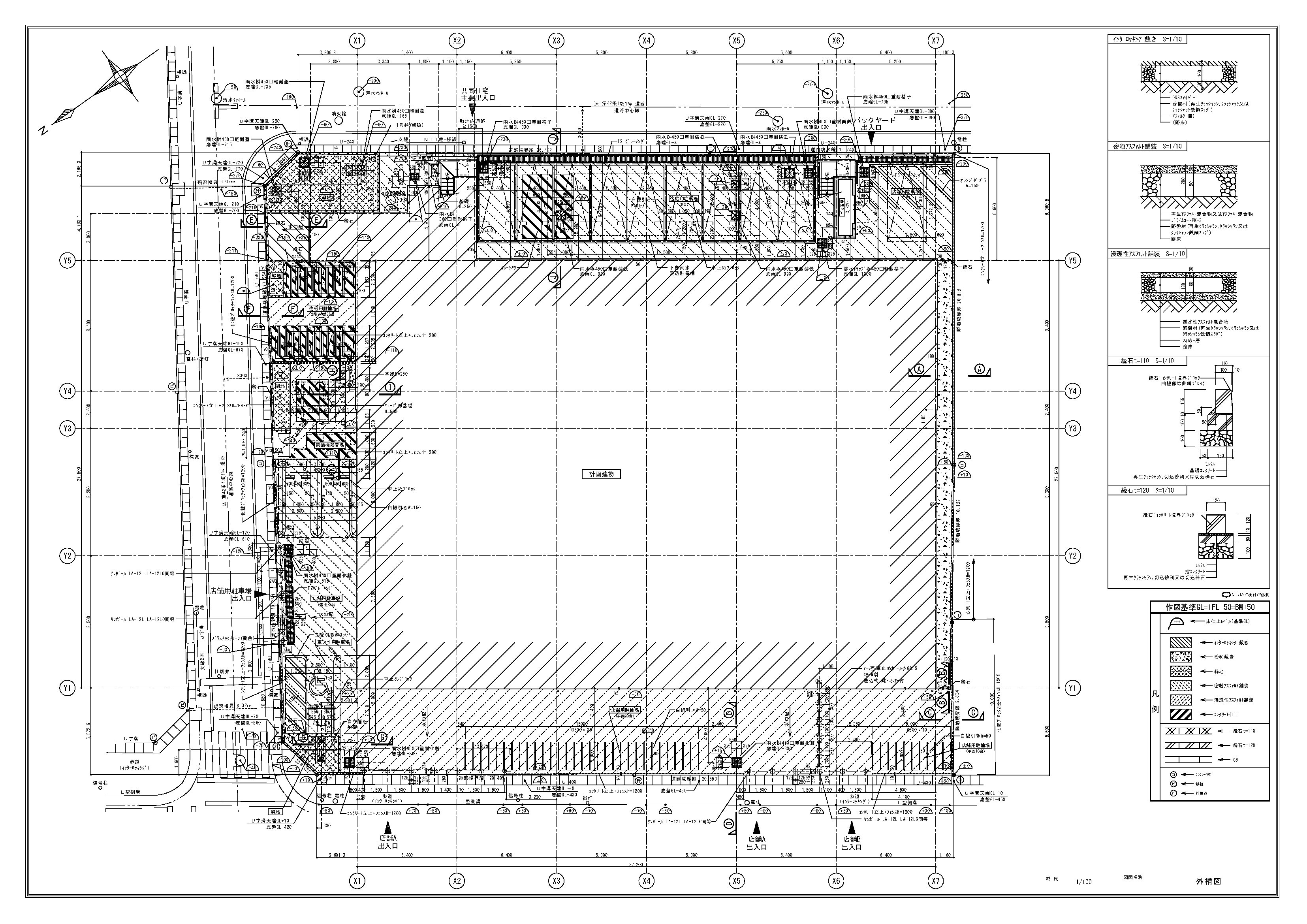
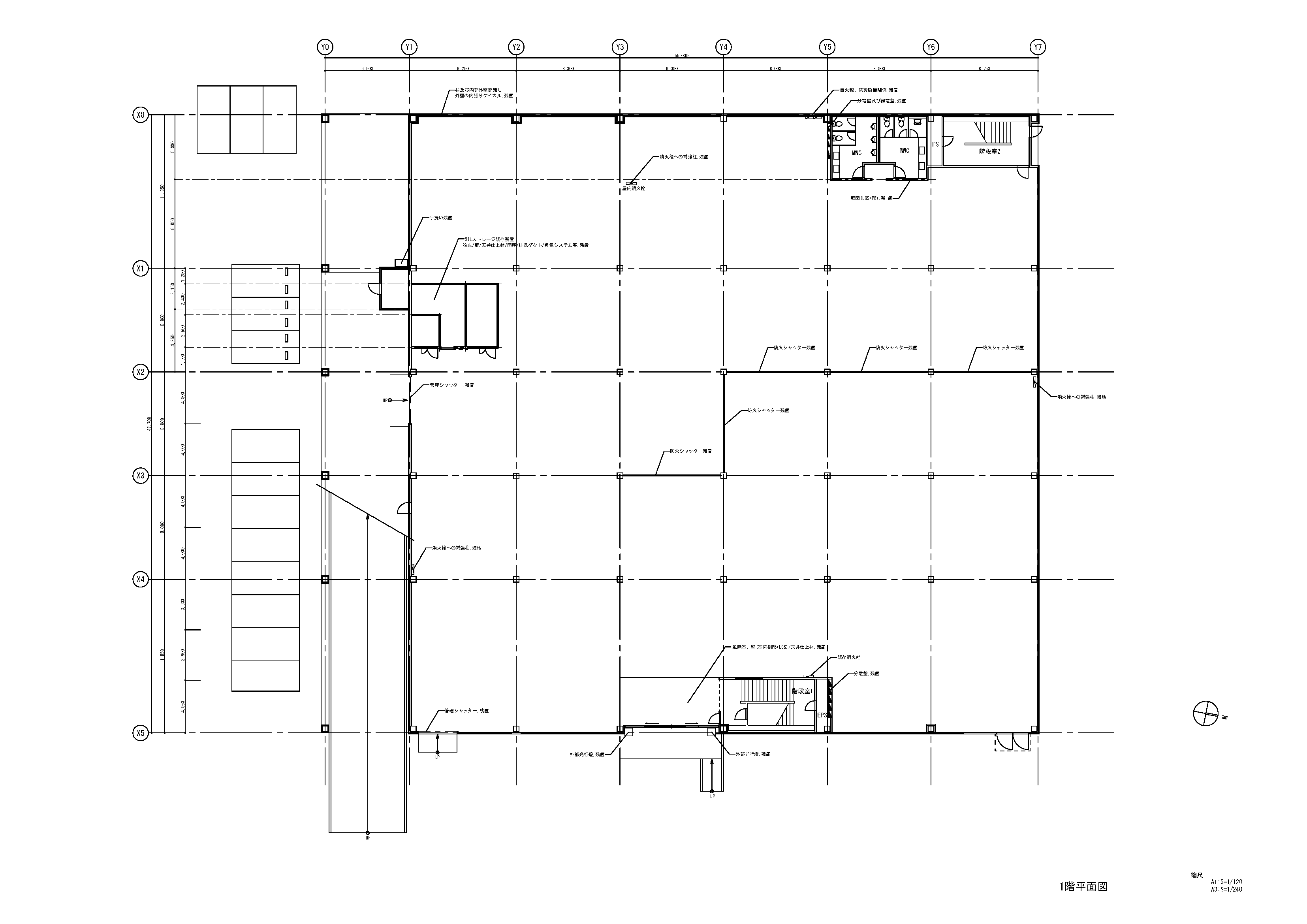
CADトレースサンプル
(A1図枠)
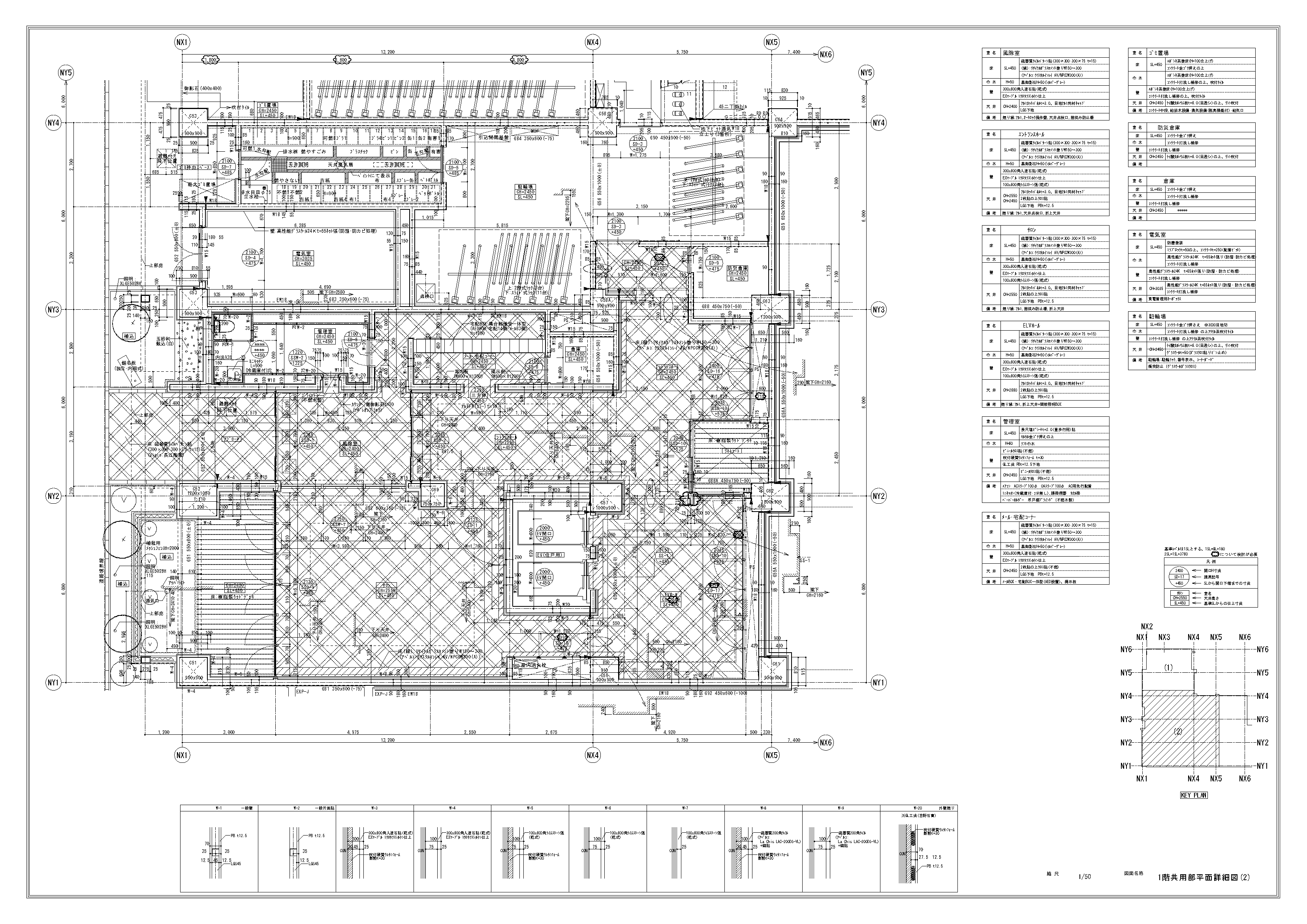
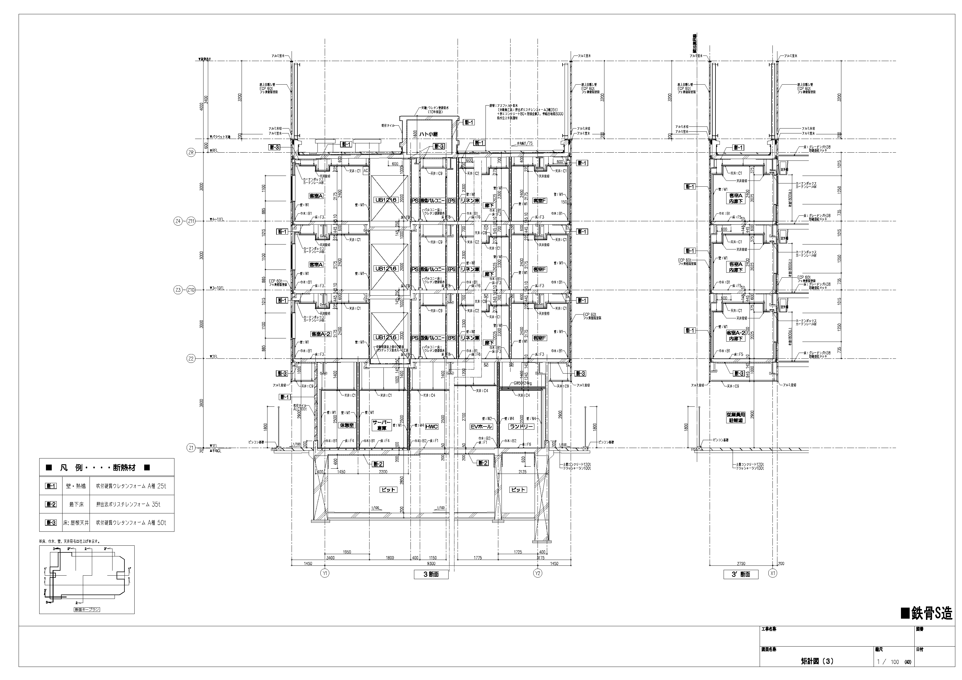
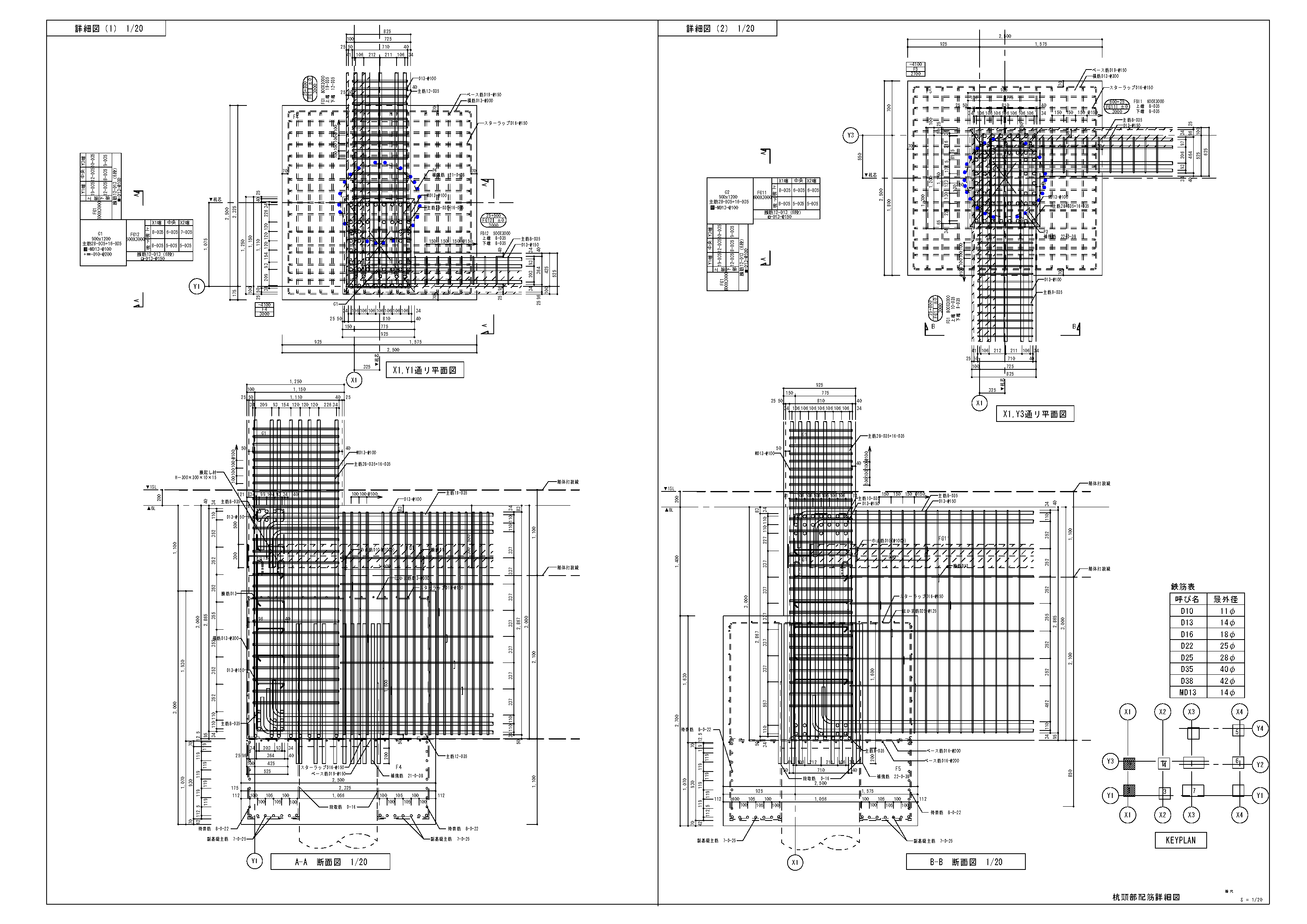
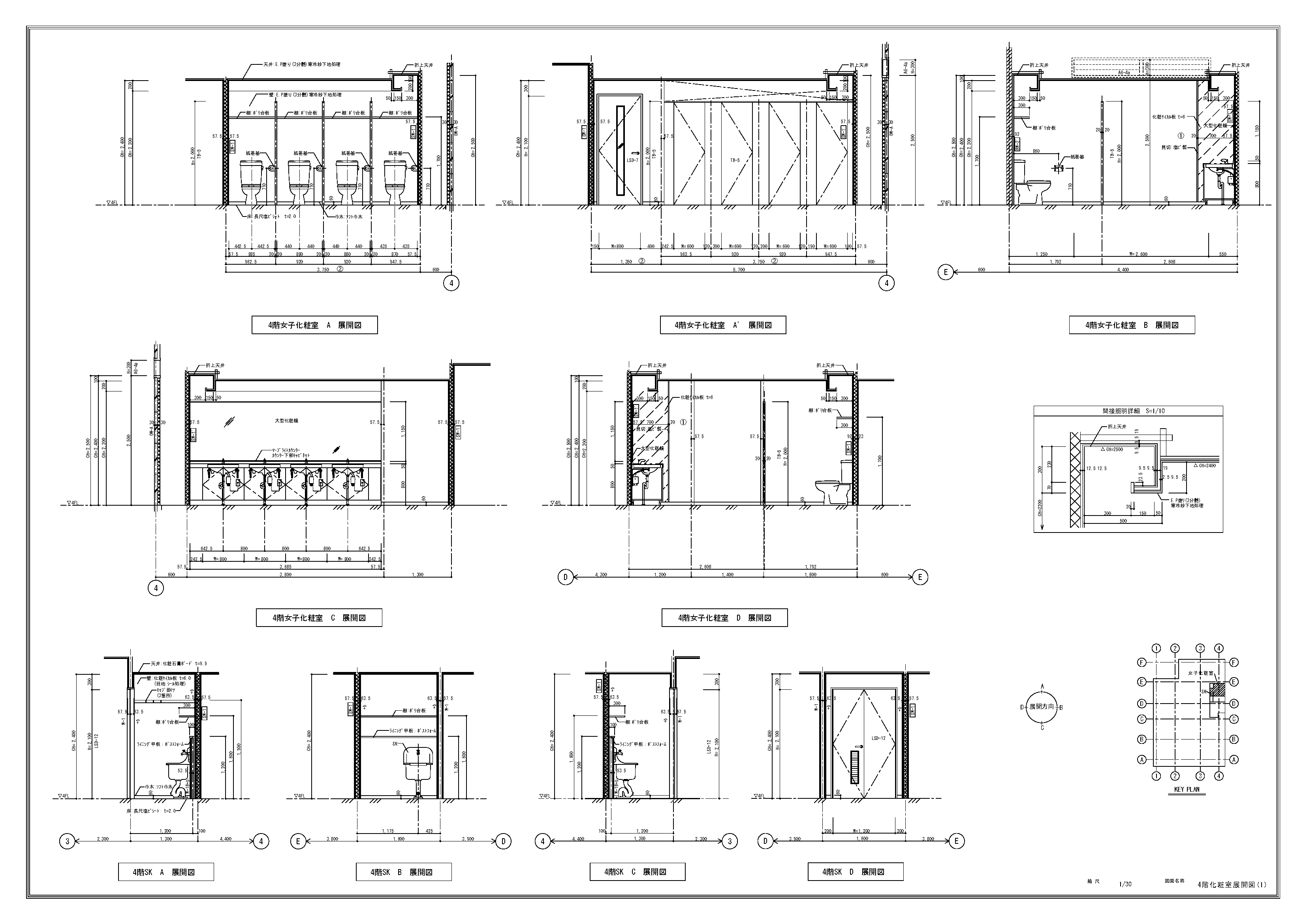
実施設計意匠図
サンプル
